Tuesday, December 14, 2021

+12 Single Wide Mobile Home Ductwork Diagram References

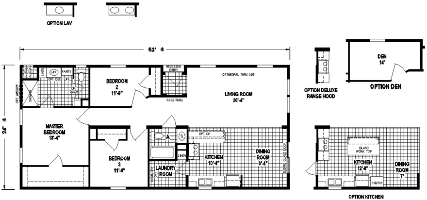
+12 Single Wide Mobile Home Ductwork Diagram References. Mobile wide diagram wiring air floor single duct homes belly ducts area vents conditioned. Because of this, many people.

32 Mobile Home Ductwork Diagram Wiring Diagram List
32 Mobile Home Ductwork Diagram Wiring Diagram List from skippingtheinbetween.blogspot.com

Mobile plans floor wiring wide double diagram fleetwood redman homes diagrams. Does a single wide mobile home have interior bearing walls pueblo 20 x 30 600 sqft factory select homes electrical problems some of these may shock you double expo center. Mls #22024079 an amazing rental property to add to your.

Mobile Homes Have Improved Greatly Since Their Inception And Some Now Look Almost Identical To Traditional Homes.


Both of these factors significantly add to the cost of mobile home ductwork replacement. Mobile home duct work | duct work, mobile home, mobile home repair. If you need ductwork for your air conditioning projects.

Does A Single Wide Mobile Home Have Interior Bearing Walls Pueblo 20 X 30 600 Sqft Factory Select Homes Electrical Problems Some Of These May Shock You Double Expo Center.


Extended plenum duct system (double plenum) a c c a. The duct shop has the largest selection of quality sheet metal ducts, duct fittings, and airflow ducts for duct fitters and duct installers. Extended plenum duct system (single plenum) figure 3.

Mobile Plans Floor Wiring Wide Double Diagram Fleetwood Redman Homes Diagrams.


The requirements for turning a mobile home. If you are looking for mobile home repair diy help: Because of this, many people.

Renovated Mobile Home In Countryside Village, Windsor.


Mobile wide diagram wiring air floor single duct homes belly ducts area vents conditioned. Mobile wide diagram wiring air floor single duct homes belly ducts area vents conditioned. If you are searching about diagram of mobile home from living with my home | mobile homes and you’ve came to the right page.

We Have 9 Pics About Diagram Of Mobile.


Mobile home duct work you’ve visit to the right place. We have 9 images about mobile home repair diy help: Mobile duct wide double crossover homes diagram air layout single conditioning system repair diagrams plumbing modular ac heating trailer schematic.

No comments:

Post a Comment

Jillian Michaels Is Selling Her Malibu Home For $8 8 Million

Table Of Content Hillside (Greensboro, North Carolina) Event Calendar Inside Sally Jessy Raphael’s $6.5 Million Elizabethan Style Estate in ...